Your Custom Text Here
Auf einem außergewöhnlich weiten und freien
Grundstück in der bayerischen Alpenlandschaft
entstand ein Wohnhaus, das die Offenheit
seiner Umgebung bewusst aufnimmt.
Die Aussicht auf den Walchensee und die
umliegende Bergwelt prägt das gesamte
Gebäude – ebenso wie die direkte
Nachbarschaft zur gegenüberliegenden Kirche
von Clemens Holzmeister, einem der
bedeutendsten österreichischen Architekten
des 20. Jahrhunderts. Dieser kulturelle Kontext
inspiriert und verpflichtet zugleich zu einer
sensiblen architektonischen Haltung.
Das Haus ist als reiner Vollholzbau aus 100 %
naturbelassenem Holz konzipiert – leimfrei,
schadstofffrei und vollständig nachhaltig. Die
Konstruktion verbindet traditionelle
Handwerkstechnik mit moderner Präzision und
schafft ein energieeffizientes, gesundes
Wohnklima. Die Materialität ist im Innenraum
bewusst spürbar: warm, authentisch und
unmittelbar mit der Natur verbunden.
Atmosphärisch knüpft das Gebäude an die
Leichtigkeit von Bootshäusern und
Sommerresidenzen am Wasser an. Dieses
maritime Flair findet sich in klaren Linien,
offenen Blickachsen und einem Wohngefühl,
das an Ferien am See erinnert. Loggias in alle
vier Himmelsrichtungen erweitern das Haus
nach außen und machen Licht, Wind und
Landschaft zu beständigen Begleitern des
täglichen Lebens.
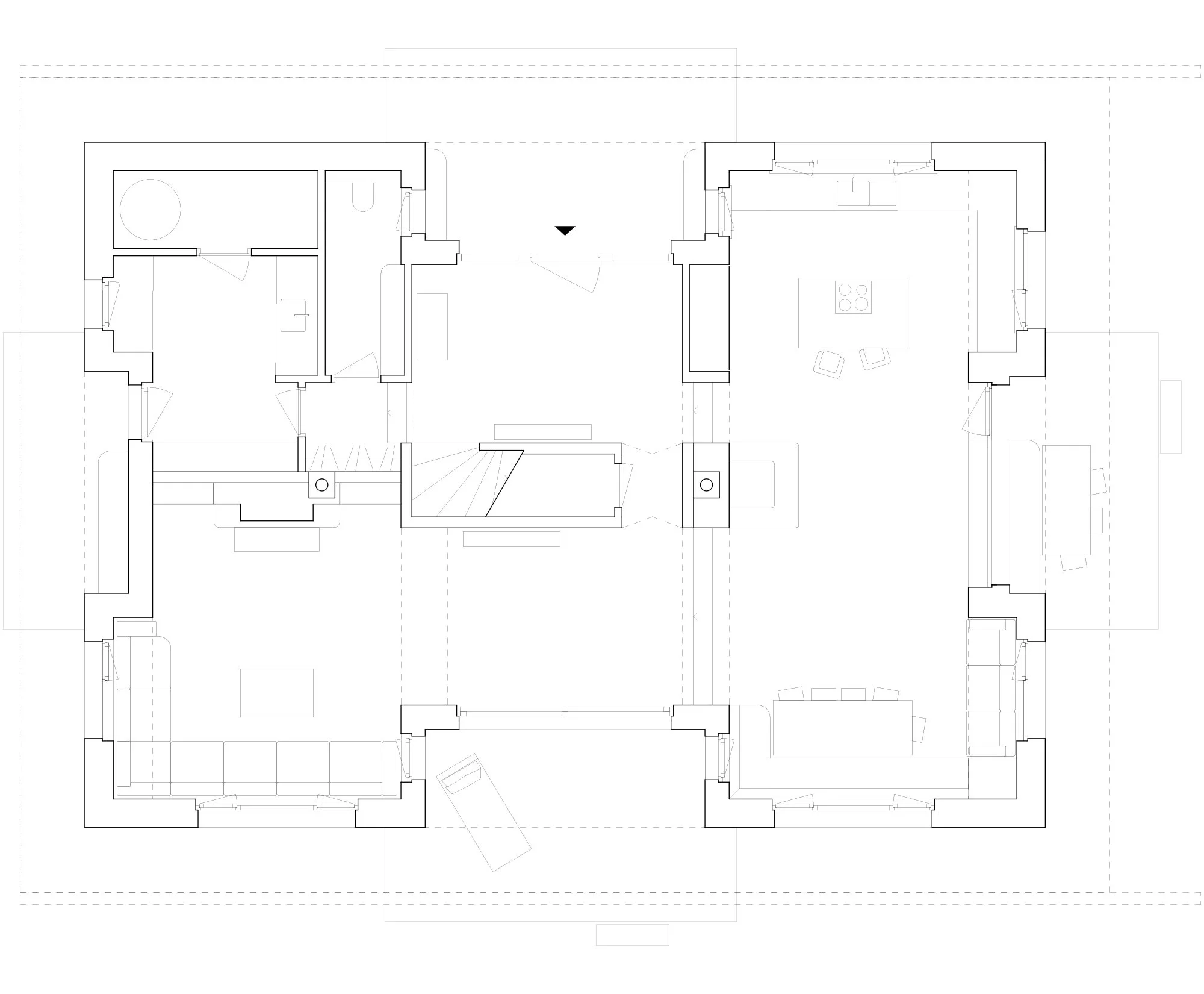
Im Inneren entfaltet sich ein offener, fließender
Grundriss. Abgestufte Raumhöhen erzeugen
eine behutsame Dramaturgie und begleiten die
Bewohner durch unterschiedliche Zonen von
Weite und Geborgenheit. Zwei Kachelöfen im
Zentrum des Hauses sind nicht nur
archaische Wärmequellen, sondern auch
identitätsstiftende Herzstücke des Wohnens.
Gekrönt wird das Gebäude von einem
markanten Dach mit weitem Dachüberstand,
das zusammen mit den signifikanten
Wasserspeier die Silhouette des Hauses prägt.
So entsteht ein Zuhause, das landschaftlich
eingebunden, baubiologisch konsequent und
in seiner räumlichen Offenheit zeitlos ist.
Fotos: Constantin Mirbach
2022
Artikel AD Architectural Digest Magazin 1/2023
Anstelle einer baufälligen Scheune wurde ein
neues Wohnhaus in einem dörflichen Kontext
errichtet. Landwirtschaftliche Höfe reihen
sich aneinander, ehemalige Nutzbauten
aus Ziegel prägen das Gesamtbild.
Innerhalb des Ortsgefüges ist es Teil eines
gewachsenen Ganzen und gleichzeitig ein
eigener Charakter.
Von der vernakulären Architektur ausgehend
wurde ein Gebäude entworfen, das eine
ländliche Aura verkörpert, ohne sich der
bäuerlichen Vergangenheit anzubiedern.
Handgestrichener Ziegel, Lehmputz, Eiche,
Pappel, Granit und verzinkter Stahl
verleihen dem Haus die Bodenständigkeit
eines Hauses auf dem Land. Die Struktur der
Wände, die Übergänge zwischen Decke und
Wand, an Raumkanten sind sachte formuliert.
In diesem haptisch anmutenden Milieu werden
präzise geschnittene Elemente wie Türen,
Fenster, Einbauten eingebettet.
In dem Haus begegnet einem die vertraute Sicht
der Dinge: raue Wände, unscharfe Kanten,
Schatten der Dinge, Transparenz,
der Durchbruch der Sonne.
Das Haus läd dazu ein, das Erstaunen
über das Primitive neu zu entdecken.
WIETERSHEIM ARCHITEKTEN
- Gestaltung
- Bemusterung Materialien und Oberflächen
- Innenraumplanung / Interior Design
- Entwurf Feste Einbauten und Möblierung
- Lichtkonzept
- Auswahl Möbel
- Aussenanlagenplanung
- Beratung der Bauherren in allen
Leistungsphasen der Architektur
- Bauherrenvertretung gegenüber
Baubeteiligten
Artetectura Ingenieurbüro (Objektplanung)
Fotos: Robert Rieger
KÄRNTEN, ÖSTERREICH 2023
HOLZHAUS AM HANG
> nachhaltiger Holzbau
> einfache Bauweise
> Reduzierung auf das Wesentliche
> low tech, high comfort
Artikel AD Architectural Digest
In einer steilen Hanglage sollte ein Haus
gebaut werden. Das Baugrundstück liegt
gerade oberhalb der Nebelgrenze, so dass
fast immer weite Sicht ist. Das Gebäude
wurde am höchsten Punkt des Grundstücks
verortet. Es ist über eine Brücke an die Strasse
angebunden.
Bei der Ankunft zeigt sich ein zurückhaltender,
niedriger Baukörper, der wenige gezielte
Öffnungen hat. Zur Landschaft hin entwickelt
er seine volle Höhe über zwei Geschosse und
öffnet sich zur Landschaft. Der Blick geht weit
auf die entfernt gelegenen Karawanken.
Frühere Nutzbauten aus der Gegend zeigen
wie sinnhaft die Typologie ist :
- ein steinerner Sockel
- ein überkragendes Dach
- ein offener Laubengang
- der Baustoff Holz
Das Haus wurde als Holzbau auf einem Beton-
sockel konzipiert. Unter einem großen geneigten
Dach mit weitem Dachüberstand liegen Wohn-
bereiche, Laubengänge und tiefere Loggien als
Aussenbereiche.
Wir haben eine einfache, stille Struktur verfolgt,
eine Umgrenzung, die einen Rückzug ermöglicht
und die Landschaft bei allen Bedingungen
erlebbar macht.
ISTRIEN 2017
SANIERUNG EINER
HISTORISCHEN GUTSANLAGE
Das Ensemble aus dem 19. Jahrhundert besteht
aus einem Haupthaus und mehreren Nutzbauten,
die sich um einen Hof gruppieren. Vorgefunden
haben wir einen verlassenen Ort, der über
15 Jahre leer stand. Unsere Aufgabe war, die
Anlage als Ferienhaus herzurichten.
Das Gebäude wurde bis auf die Aussenmauern
entkernt. Alle Bauteile aus Holz waren morsch
und nicht mehr tragfähig. Ursprüngliche,
prägende Elemente wie Bögen, Gewölbe und
Öffnungen wurden erhalten. Steine wurden
ausgebaut, behauen, wieder in Position
gebracht und durch frisch geschnittenen
neuen Stein ergänzt.
Es wurde klar, dass die Steine die physische
Verbindung zur Geschichte des Ortes
darstellen und diese auch in Zukunft werden
weiter erzählen können.
Holzelemente wurden so behandelt, dass
sie eine Alterung zulassen. Unbehandelten
Stahl wurde bei Pergolen und Geländern
eingesetzt. Sichtbeton wurde mit dem lokalen
Stein Canfanar als Zuschlag versetzt und dann
geschliffen. Fugen wurden nicht mit Silikon
versiegelt, sondern mit Blei ausgegossen.
Wir haben geschaut, dass man die Dinge, nicht
auf dem schnellsten, industriellen Weg löst,
sondern sie mit einer Handwerklichkeit umsetzt.
Sie ist Träger für die Atmosphäre.
Innen gibt es eine tragende Mittelwand, als
statische Ebene, die auch eine atmosphärische
Rolle spielt. Der Bereich vor der Mauer wurde als
Holzkonstruktion gebaut, der hinter der Mauer
wurde in Beton umgesetzt.
Man bewegt sich vom Steinernen ins Hölzerne.
Der Bestand und die Konstruktion wurden aufs
Engste verflochten, so dass die alten Räume
in diesem Gefüge wieder entstehen können.
Das neue strukturelle Gerüst haben wir als
Chance begriffen, die Räume innerhalb des
Hauses neu zu verankern und sie dadurch
atmosphärisch zu verdichten.
Umbau das ist nicht einfach "einmal alles neu",
dann würde das Alte dagegen nur "alt" aussehen.
Mit der Substanz eine satte, enge Bindung
eingehen - darauf kam es uns an, sonst umschifft
man die Aufgabe.
Progressiver Umgang mit dem Bestand das
bedeutet für uns:
- maximale Einordnung
- echte inhaltliche Nähe suchen.
Casa Ceppi is set in the old village Čepić with
views over the hilly landscape. It is an extensive
ensemble of buildings that group around a
courtyard with planted terraces and gardens. The
main building accomodates the core rituals of
living: sleeping, resting, cooking & eating.
A long wing stretches out into the landscape. It
frames a series of outside spaces that invite to sit
in the shadow under the open sky. The pool and
poolhouse are set aside in a seperate area from
the main building. Two small old stables and a
boccia court at the bottom of the estate tell from
the old times of Casa Ceppi as a farm house.
Several pergolas convert sunlight into
comfortable radiance.
The lives of all buildings spill out naturally in the
centre courtyard where everyone can meet on an
extensive terrace to sit and enjoy the view.
ISTRIEN 2017
SANIERUNG EINER
HISTORISCHEN GUTSANLAGE
FLÄCHE 1.200 m²
LEISTUNGSPHASE 1 - 9
Das Ensemble aus dem 19. Jahrhundert besteht
aus einem Haupthaus und mehreren Nutzbauten,
die sich um einen Hof gruppieren. Vorgefunden
haben wir einen verlassenen Ort, der über
15 Jahre leer stand. Unsere Aufgabe war, die
Anlage als Ferienhaus herzurichten.
Das Gebäude wurde bis auf die Aussenmauern
entkernt. Alle Bauteile aus Holz waren morsch
und nicht mehr tragfähig. Ursprüngliche,
prägende Elemente wie Bögen, Gewölbe und
Öffnungen wurden erhalten. Steine wurden
ausgebaut, behauen, wieder in Position
gebracht und durch frisch geschnittenen
neuen Stein ergänzt.
Es wurde klar, dass die Steine die physische
Verbindung zur Geschichte des Ortes
darstellen und diese auch in Zukunft werden
weiter erzählen können.
Holzelemente wurden so behandelt, dass
sie eine Alterung zulassen. Unbehandelten
Stahl wurde bei Pergolen und Geländern
eingesetzt. Sichtbeton wurde mit dem lokalen
Stein Canfanar als Zuschlag versetzt und dann
geschliffen. Fugen wurden nicht mit Silikon
versiegelt, sondern mit Blei ausgegossen.
Wir haben geschaut, dass man die Dinge, nicht
auf dem schnellsten, industriellen Weg löst,
sondern sie mit einer Handwerklichkeit umsetzt.
Sie ist Träger für die Atmosphäre.
Innen gibt es eine tragende Mittelwand, als
statische Ebene, die auch eine atmosphärische
Rolle spielt. Der Bereich vor der Mauer wurde als
Holzkonstruktion gebaut, der hinter der Mauer
wurde in Beton umgesetzt.
Man bewegt sich vom Steinernen ins Hölzerne.
Der Bestand und die Konstruktion wurden aufs
Engste verflochten, so dass die alten Räume
in diesem Gefüge wieder entstehen können.
Das neue strukturelle Gerüst haben wir als
Chance begriffen, die Räume innerhalb des
Hauses neu zu verankern und sie dadurch
atmosphärisch zu verdichten.
Umbau das ist nicht einfach "einmal alles neu",
dann würde das Alte dagegen nur "alt" aussehen.
Mit der Substanz eine satte, enge Bindung
eingehen - darauf kam es uns an, sonst umschifft
man die Aufgabe.
Progressiver Umgang mit dem Bestand das
bedeutet für uns:
- maximale Einordnung
- echte inhaltliche Nähe suchen.
Casa Ceppi is set in the old village Čepić with
views over the hilly landscape. It is an extensive
ensemble of buildings that group around a
courtyard with planted terraces and gardens. The
main building accomodates the core rituals of
living: sleeping, resting, cooking & eating.
A long wing stretches out into the landscape. It
frames a series of outside spaces that invite to sit
in the shadow under the open sky. The pool and
poolhouse are set aside in a seperate area from
the main building. Two small old stables and a
boccia court at the bottom of the estate tell from
the old times of Casa Ceppi as a farm house.
Several pergolas convert sunlight into
comfortable radiance.The lives of all buildings
spill out naturally in the centre courtyard where
everyone can meet on an extensive terrace to sit
and enjoy the view.
www.casaceppi.com
BERLIN 2016 - 2017
ENTWURF UND PLANUNG
EINER FACHBIBLIOTHEK
DER ARCHÄOLOGIE
In einem gründerzeitlichen Haus wurde eine
Fachbibliothek der Archäologie konzipiert und
umgesetzt. Die Räume sollte sowohl ein
Speicher für Bücher sein, als auch von
Studierenden als Leseraum genutzt werden.
Die Vorgabe war, dass der Entwurf der
Bibliothek einen Bezug zur Antike haben soll.
Entstanden ist ein Raumgefüge aus einem
privaten Studierzimmer mit Balkon, einem
hallenartigen Erkerzimmer und einem Berliner
Zimmer als Versammlungs- und Vortragsraum.
Ausziehbare Tablare, Ablagefächer, Sekretäre
und Bibliotheksleitern ermöglichen das
Recherchieren und Arbeiten mit den Büchern
in einem analogen Rückszugsort.
Der Nebentrakt im Seitenflügel wurde räumlich
neu gestaltet und mit mehreren Interventionen
aufgewertet: der lange Flur wurde über hohe
Türen mit Oberlichtern belichtet und als Galerie
für Fundstücke und Repliken aktiviert. Es wurde
eine kompakte Teeküche für die Mitarbeiter
und Gäste der Bibliothek eingerichtet. Weitere
Räume wurden als Assistenzbüro, Esszimmer
und Wohnzimmer aktiviert.
Unser Eingriff sollte keine Momentaufnahme
hinterlassen, sondern einen Ort, der das
Resultat einer längeren Entstehensgeschichte
ist: Antike, Gründerzeit, Italien der 1950er Jahre,
Ostberlin, Nachwendezeit und heute.
BERLIN 2017
NEUBAU EINES WOHN-
UND GESCHÄFTSHAUSES
Preisträger Deutscher Ziegelpreis 2021
Sonderpreis “Einfaches Bauen“
Nominierung für den DAM Preis 2020 des
Deutschen Architekturmuseums
AD Architectural Digest Magazin Ausgabe 1/2023
Teilnahme an der Ausstellung
da! Architektur in und aus Berlin 2019
Haus Chausseestrasse Interior
In der Verlängerung der Friedrichstraße
nach Norden, am Übergang zwischen Mitte
und Wedding steht das Haus Chausseestr.48a
gegenüber dem neu gebauten Bundes-
nachrichtendienst. Die Schnittstelle der beiden
unterschiedlichen Quartiere und das groß-
maßstäbliche Vis-à-Vis mit vierzehntausend
Fenstern bieten für ein Haus an diesem Ort die
Grundlage einer spannenden
städtebaulichen Auseinandersetzung.
Das Gebäude steht als Kopfbau am Ende
einer Zeile gründerzeitlicher Häuser und ist somit
bis auf eine Seite freigestellt. Die südliche Seite
musste als Brandwand ausgebildet werden.
Die dreiseitig offene Situation bot Anlass zu einer
eingehenden Beschäftigung mit dem Baukörper
als Ganzes - statt mit einzelnen Schaufassaden.
Das Haus sollte ein körperhafter Baustein, ein
robuster Teil der Stadtreparatur werden.
Das Bauwerk legt die elementare Tragstruktur
eines Hauses offen: geschichtete Steinquader
lasten auf Decken. Die Wandscheiben sind
auf Abstand gestellt, so dass Öffnungen
entstehen. Die Besinnung auf dieses einfache,
aber substantielle tektonische Prinzip hat sich
dieses Haus zur Aufgabe gemacht.
Wie kann man die Einfachheit von Modellen
bewahren und durch den Bauprozess bringen ?
Das Primäre wird gestärkt, indem man das
Sekundäre weglässt: Stürze, Brüstungen,
Bleche, Rollläden - auf alles, was nachträglich
appliziert wird, wurde so gut es geht verzichtet.
Es wurde monolithisch mit Ziegeln gebaut,
die Decken sind in Ortbeton, der Sockel ist aus
zweischaligem Beton. Den Ziegeln und dem
Beton als Materialien, die direkt aus dem
Bauprozess kommen, wurde durch den
gefärbten Putz etwas Kleidendes hinzugefügt.
Die Pfeiler seitlich der Fenster lassen im
Inneren Rücksprünge für die Integration
von Vorhängen entstehen. Die Kubatur des
Treppenkerns bildet sich plastisch in den
Wohnungen ab und gliedert sie in die einzelnen
Bereiche Küche, Wohnen und Schlafzimmer.
Raumnischen werden durch Holzeinbauten
ausgeformt. So entstehen begehbare
Kleiderschränke und Alkoven, die
Gebrauchstauglichkeit und Wohnqualität
schaffen.
Im Sinne der Einfachheit des Rohbaus wurde
großen Wert auf eine leichte und beherrschbare
technische Ausführung gelegt.
Das einfache Bauen, die Materialehrlichkeit,
die Identität in der Konstruktion, suchen
- das hat uns hier beschäftigt.
ISTRIEN 2012 - 2014
SANIERUNG UND NEUBAU
EINES LANDHAUSES AM HANG
Ein hundert Jahre altes Haus wurde
hergerichtet und durch einen Anbau
erweitert. Der Neubau ist durch die
offene Fassade und die Veranda
aufgelöst. Der Altbau behält durch
seine Massivität und Höhe die Dominanz.
Der präzise geschnittene Stein Canfanar,
roher und auf den Böden geschliffener
Ortbeton, aus fragilen Profilen zu Halt
gefügter Stahl und dunkel gebeiztes
Holz erkunden die Möglichkeiten
unterschiedlicher Handwerksdisziplinen.
Alle Arbeiten wurden von lokalen
Steinmetzen, Schmieden und Tischlern
- vielfach ohne das Zutun von
industrieller Fertigung - geleistet.
BERLIN 2013 - 2016
SANIERUNG EINES WOHNHAUSKOMPLEXES
AUS DER GRÜNDERZEIT
FLÄCHE 7.200 m²
Nach mehr als zehn Jahren Leerstand wurde
der Gebäudekomplex bestehend aus
Vorderhaus, Seitenflügel und drei Quergebäuden
umfassend erneuert und siebzig Wohn- und
Gewerbeeinheiten geschaffen. Dächer, Decken,
Wände, Treppenhäuser, Fassaden und die
gesamte Haustechnik wurden saniert und einem
zeitgemäßen Wohnen und Arbeiten angepasst.
Die Ziegelfassade des ehemaligen Fabrik-
gebäudes wurde vorsichtig repariert und
ausgebessert, um den ursprünglichen Charakter
zu erhalten.
Fotos: Nicolas Schwaiger
ISTRIEN 2017
POOLHAUS MIT POOL
Der Anlage "Casa Ceppi" wurde ein Pool und
ein Poolhaus hinzugefügt. Der Pool wurde aus
geschliffenem Beton hergestellt, der mit dem
lokalen Stein Kanfanar als Zuschlag versetzt
wurde.
Das Haus hat als Nutzbau eine einfache lineare
Struktur von aneinandergereihten Räumen.
Es dient als Gartenlager, Küche und
Umkleidebereich.
Die Räume öffnen sich nach vorne vollständig
zur Landschaft und können mit großen
durchlässigen Toren aus geöltem Holz
verschlossen werden.
BERLIN 2015
NEUGESTALTUNG EINES
VERANSTALTUNGSRAUMS
FÜR DIE
STIFTUNG DEUTSCHE KINEMATHEK
Der Raum befindet sich im Sony Center
in Berlin, Mitte. Er ist Teil des Museums
für Film und Fernsehen und war - trotz
seiner Lage direkt zur Potsdamer Strasse -
als Abstellfläche etwas in Vergessenheit
geraten. Nun sollte der Ort dem Zusammen-
treffen von Menschen bei Filmvorführungen,
Empfängen, Workshops und Seminaren
gewidmet werden.
Die unterschiedlichen Bespielungen erfordern
ein hohes Maß an Wandelbarkeit. Wir haben
zwei Dinge vorgesehen, um einen adaptierbaren
Ort zu schaffen:
- ein Vorhangsystem, das Umgrenzung, Teilung
und Verdunkelung zugleich ist
- eine Lichtinstallation, die je nach Bespielung
verschiedene Zustände hervorrufen kann.
Es ging um den Einsatz von zwei Elementen:
Stoff und Licht.
Bei dieser Intervention hat uns interessiert,
wie eine Ausgangslage geschaffen werden
kann, bei der die Akteure den Ort,
die Atmosphäre, das Geschehen
selbst entstehen lassen können.
Projektreferenz bei kvadrat
Fotos: Nicolas Schwaiger
ISTRIEN 2017
EINRICHTUNG
FÜR EIN WOHNHAUS
In Zusammenarbeit mit lokalen
Handwerkern wurden für das
Haus "Casa Ceppi" Details und
Möbel entwickelt und angefertigt.